客服热线:
0595-86811139
我的进货单
0
平台首页
|
手机版
|
二维码
|
客服中心
|
反馈意见
联系我们
VIP服务
|
VIP
会员服务
建站服务
联系我们
网站地图
特色频道
石材供应
|
石圈
|
石材价格
|
展会
|
专题
|
图片
|
石材资讯
|
厂家
扩展专区
排名推广
|
积分商城
|
黄金广告
|
意见反馈
网站地图
|
网站公告
|
RSS订阅
用户专区
用户中心
|
发布货源
|
发布采购
|
发布展会
VIP会员
石材资讯
首页
商机
石材供应
石圈
厂家
展会
资讯
全部资讯
石业聚焦
展会资讯
石业知识
石材生意经
技术标准
行业分析
当前位置: >
139石材网
>
石材资讯
>
技术标准
技术标准
找到
801
条相关结果
置顶
中国石材协会石材应用质量评价委员会正式挂牌开展工作
为加强石材应用质量评价工作,促进石材产品的推广应用,推动石材行业高质量发展,中国石材协会拟设立石材应用质量评价委员会,委员会依托国家石材质量监督检验中心开展工作,秘书处设在该中心。受疫情影响,计划…
2023-04-11 08:58
类目:
技术标准
置顶
大理石地铺装饰案例之佛罗伦萨蓝
大理石地铺装饰案例之佛罗伦萨蓝 地面上的道道条纹纵横分布,灰白搭配出的颜色经典时尚,浓重的灰黑色调,仿佛可以读出文艺复兴时期的历史故事,令雅致沉稳佛罗伦萨蓝大理石地铺装饰 走廊 大堂 过道地铺 斜纹大理石深…
2023-03-27 14:45
类目:
石材装饰
置顶
装饰石材楼梯的踢脚线有哪些设计样式(附案例欣赏)
楼梯踢脚线颜色、材质如何选?很简单~可以与楼梯材质一致或者与楼梯颜色一致,达到整体性统一的效果。沿着楼梯边做了护墙板,还有必要做踢脚线吗?当然要做!可能大家觉得,护墙板和踢脚线不都是保护墙面的作用,…
2023-03-17 08:56
类目:
石材装饰
置顶
大理石在古代(明清时期)有哪些时尚的应用?
大理石在古代(明清时期)有哪些时尚的应用?在古代,大理石是最为常见的石雕牌坊制作材料。大理石磨光后非常美观。主要用于加工成各种形材、板材,作建筑物的墙面、地面、台、柱,还常用于纪念性建筑物如碑、塔…
2023-03-17 08:23
类目:
石材装饰
石材装饰搭配-哑光黑白根与熊猫白的碰撞
石材装饰搭配-哑光黑白根与熊猫白的碰撞 不管是大理石还是岩板 都是很好看的色系搭配一起来欣赏熊猫白和黑白根都是国产比较有特点的大理石产品。在性价比上横向来对比,国货之光也不为过!!!
2023-03-04 11:09
类目:
石材装饰
置顶
室内装饰设计师必备-石材图库 | 50款白色大理石分享
白色大理石在家居装修中可以说是明星石材白色大理石气质温润天然纹理扣人心弦其简洁优雅的气质散发着一种小清新的感觉深受年轻人的喜爱大家耳熟能详的有鱼肚白、雅士白、爵士白等其实还有很多名气没有那么大下面…
2023-02-28 10:56
类目:
石材装饰
置顶
宝格丽木纹大理石2023装饰案例欣赏
罗马大理石:宝格丽木纹,一款多色,选你所爱! 推开门,黑白灰的木纹设计,时尚与天然的元素的有机融合,如音符般跃动。为整个家居装饰空间带来了一派清新雅致的气象。对于高档装修的诗意营造,罗马木纹无疑是佳…
2023-02-25 10:57
类目:
石材装饰
置顶
大理石和瓷砖哪个更适合铺地面,地面装修铺大理石还是瓷砖?
地面铺大理石与铺瓷砖,有什么区别?大理石vs瓷砖孰优孰劣?家装行业天然大理石一直都占据着重要的地位,而新型的材料不断进入人们的视野。瓷砖、岩板等人造材料的模仿在模仿大理石纹理的能力越来越精湛。由于切…
2022-12-16 09:13
类目:
石材装饰
置顶
这9种大理石铺装铺贴风格,你喜欢哪一种?
大理石的丰富的纹理和独特的图案赋予你更多的灵感,为您创造梦想家园带来无限可能。下面是9款最受欢迎的铺设方式,你喜欢哪一种?1鱼骨型铺贴经典而不可或缺的选择错落有致的铺设风格,45度角V字形排列。这种以长…
2022-12-13 08:54
类目:
石材装饰
置顶
鱼肚系列大理石鱼肚白·鱼肚金·鱼肚灰介绍
在石材装饰行业有个很常见的现象就是比如一款石材比较畅销,就会有很多产品同时跟进,是那种以不同形式的跟进,比如说价格上的跟进,名字上的跟进以及产品标签的跟进。今天就来聊一聊三款市场都叫鱼肚X的大理石产…
2022-11-21 14:52
类目:
石材装饰
置顶
东南亚国家会取代我们成为石材出口大国吗?
9月12日这天看朋友圈,一位在多家企业与笔者共事的朋友发来了一段越南的马赛克加工厂视频,下面4张图是视频上的截图。图1 图2图3 图4从上面4张图片可以看出这家专门加工马赛克的工厂工厂面积较大。朋友说有4000~…
2022-10-19 09:03
类目:
石材装饰
置顶
佩奇灰-大理石新品推荐2022
佩奇灰大理石 清爽 淡雅的板面风格相信是这个炎热夏天的一抹清凉,如果刚好赶上这个季节装修,想必多少会对它有那么一点动心,价格在水头市场源头厂家也算是可以接受。水头市场的价格:佩奇灰320-380
2022-08-25 10:10
类目:
石材装饰
置顶
一片水墨白玉就是一种风景 自然生动 经典耐看
水墨白玉大理石一片水墨白玉就是一种风景 自然生动 经典耐看
2022-07-05 16:59
类目:
石材装饰
置顶
奢石画内装墙面欧式风格欣赏(格兰云天与亚马逊绿)
奢石画内装墙面欧式风格欣赏(蓝与绿)亚马逊绿和景泰蓝系列奢石装饰 顶级豪宅装饰搭配大理石全屋定制量身打造奢华雅致别墅时尚优雅,质感高级,是大理石给人们的直观感受,其本身自带的艺术感更是备受人们喜爱。…
2022-06-20 11:08
类目:
石材装饰
置顶
冷翡翠大理石-一款符合东西方审美的天然国产奢石
时下热门流行的国产大理石-来自云南的高贵冷翡翠,附应用案例欣赏近两年市场上有不少热门的石材品种,从微晶石、到岩板、奢石、到无极水磨石等等,奢石系列中很多都是国外的产品,不过有一款高贵神秘的畅销产品确…
2022-05-30 08:21
类目:
石材装饰
置顶
犀牛灰大理石大板及装饰案例欣赏
犀牛灰大理石大板及装饰案例欣赏,案例装饰实拍犀牛灰大理石大板犀牛灰纹路特别分明的白色大理石,命名为“雕刻白”,它是全世界身价最高的大理石之一。犀牛灰大理石案例应用 墙面和地面装饰
2022-05-27 09:28
类目:
石材装饰
大理石家装系列产品欣赏凯悦红,天堂鸟,阿波罗内装案例欣赏
大理石家装系列产品欣赏凯悦红,天堂鸟,阿波罗内装案例欣赏地铺 简单拼贴楼梯板背景墙台面系列玄关背景 地面拼花客厅地板楼梯板
2022-04-29 17:02
类目:
石材装饰
置顶
环球石材别墅大理石拼花 | 以石材代替颜料,拼出精美艺术画
在别墅装饰中,设计师经常会以石材代替颜料,拼出精美的艺术画。其变幻多彩的花色、精雕细琢的工艺、个性时尚的设计深受人们的喜爱。灵活的石材拼花应用,是别墅空间重要的视觉色块,能影响整体的设计美感。01 客…
2022-04-22 10:47
类目:
石材装饰
美国天然石材分类标准ASTM C119介绍(译文)
译者:ASTM C119是美国使用的天然石材分类方法,也是目前我国主要参考的标准。其将天然石材分为花岗岩、石灰石、大理石、石英基石材、板岩、其他共六类。现将其原文全文翻译,以供参考。花 岗 岩花岗岩: 一种具…
2022-04-19 11:32
类目:
技术标准
置顶
天然装饰石材的应用与中国文化
随着石材“辐射论”的真相大白,人民惊奇的发现,在整个建筑装饰材料中,纯绿色低碳环保的装饰材料只剩下石材一种。木材是上天赐给人类的建筑装饰材料,伴随着人类的整个发展过程。到如今,木材的使用仍然非常广…
2022-04-04 09:54
类目:
石材装饰
石材订货合同范文
石材作为建设行业的重要材料,自古到今都发挥着重要作用。签订石材订货合同需要注意什么呢?以下是在石材网小编为大家整理的石材订货合同范文供方:兹有需方向供方订购用于***保护改造工程第三坊A工程的外墙墙裙石…
2022-04-02 11:41
类目:
技术标准
置顶
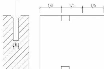
墙面干挂中的石材板材开槽规范
外墙干挂中的石材板材开槽规范1、短槽位置的设计短槽的宽度宜设计为6-7mm,短槽开口的槽口应设计成45度角,短槽所开槽的深度应满足所选用的金属关键的插入深度规格要求。为了满足充分安装金属挂件的要求,一般短…
2022-04-02 09:20
类目:
技术标准
置顶
石材产品缺陷之花岗岩篇(自然缺陷和人为缺陷)
花岗岩石材缺陷注意事项#花岗岩石材验货一般要注意1、先根据订单核对数量、尺寸、抽验厚薄度、对角线2、查看板面质量是否与订单需求相符3、产看板材的加工工艺是否合格再来点专业技能查验板材的小诀窍:可以用水…
2022-03-30 11:16
类目:
技术标准
置顶
专家分享|我国人造石标准发展历程
我国人造石标准发展历程——全国石材标准化技术委员会 秘书长、教授级高级工程师周俊兴上世纪80年代初,我国先后从意大利引进了多条人造石生产线,开始了人造石产品国内规模化生产。以广东云浮市粤云新型石材有限…
2022-03-28 16:55
类目:
技术标准
置顶
【石材矿山文化】浙江缙云石宕,千年采石场化身洞天舞台
缙云石宕——化身洞天舞台从经济开发到生态再利用中国浙江省缙云县的山形景观由天然石材的人工开采所塑造。在这个千岩万转、崎岖难行的山区,北京建筑师徐甜甜和她的团队被委托为三千多个小型废弃采石场中的九个…
2022-03-26 10:33
类目:
石材装饰
置顶
天然奢石装饰 | 独一无二的美感,最自然的奢华
奢华的石材不同于常用的花岗岩和大理石,它主要是指天然石英石或半宝石,水晶及玛瑙等有着特殊的色彩和纹理的特色石材。例如:蓝玉、红玛瑙、亚马逊绿、孔雀石、鱼肚白等。掉入凡间的宝藏最自然的奢华石之大者,…
2022-03-11 09:47
类目:
石材装饰
置顶
【装修经验】大理石楼梯装饰设计施工中的5个注意细节问题
石材 ▍2022大理石楼梯Marble staircase 2022楼梯是连接空间的重要组件,也是家居设计的一道风景,作为垂直交通的工具,将层与层之间紧密地联系在一起,但除了满足实用功能之外,还应该把它作为一件艺术品来设计…
2022-03-08 10:51
类目:
石材装饰
置顶
石材装饰楼梯,选混凝土结构还是钢结构?那种更好?
现在有很多跃层、顶楼、别墅等户型都涉及到做石材楼梯。那室内装修中石材楼梯的基础是混凝土结构基础好还是钢结构基础好呢?我们来分析下这两种方式的优劣。混凝土结构楼梯基础混凝土结构楼梯基础混凝土结构楼梯…
2022-03-08 10:45
类目:
石材装饰
置顶
楼梯界的天花板-大理石楼梯欣赏(多图)
石材楼梯梯步是别墅大宅家装中不可缺少的重要组成部分。石材楼梯不仅起着装饰的作用,更为重要的是其耐用性,大理石便成为其最佳的选择材料。家居装修中,想要拥有精美的楼梯,想让客厅变得别具一格,那么表面光…
2022-03-03 10:52
类目:
石材装饰
晏辉:这什么“大理石”,不能见阳光,四个月就变黄?
近日看到某音上的一段视频:“什么大理石?4个月黄变,刚才老板跑来讲不能见光。我想说你卖的东西不是给人用的吗?不给解决只能法院见了”。这段文字是视频上写的。看了这段视频后引发我的深思。深思一视频中的背…
2022-03-01 14:52
类目:
石材装饰
«上一页
1
2
…
3
4
5
6
7
…
26
27
下一页»
共801条/27页
免费注册
登录
商务中心
免费投稿
今日头条
1
遂昌红花岗岩的优势有哪些 浙江遂昌
浙江遂昌县原产地矿区的遂昌红花岗岩(国家石材统一编号 G333…
2025-07-23 10:55
2
全球范围内分析各国对石材的需求对比
一、全球石材需求大国概览在全球石材市场中,有多个国家占据…
2024-11-27 08:36
3
土耳其紫罗红大理石:奢华与挑战并存
一、紫罗红大理石的独特魅力土耳其紫罗红大理石以其独特的魅…
2024-11-14 09:21
4
明星来水头选购石材产品会带来什么影
昨天水头石材朋友圈刷屏的无疑是黄渤来水头看石材了,每次明…
2024-05-29 11:56
5
【干货分享】中国黑色花岗岩产品汇总
花岗石是一种最耐得住寂寞的石材。它材质坚硬,不惧风吹雨打…
2023-03-13 08:48
6
2023年江西那些比较火热受欢迎的花岗
2023年了,江西现在还有哪些石材矿山在火热的开采中?提到江…
2023-03-07 10:00
7
中国2021年石材进出口主要国别及数据
2021年进口石材主要来源国数量及货值2021年,我国石材进口量…
2022-03-28 16:44
8
100款石材洗衣池欣赏!天然石材(花
采用精致细腻花岗岩色泽纹路均保持自然原石风格,将天然石材…
2022-03-23 10:57
9
背靠房地产,千亿市场却没诞生大公司
为什么背靠房地产,却没有诞生石材大公司?为什么客户越大,…
2021-06-10 09:28
10
敲黑板:花岗石用于建筑外挂有安全隐
在当下,衡量一个楼盘是否具备高端或者豪宅属性,是否使用石…
2020-11-10 11:50
热门标签
花岗岩
石材
石材产地
五莲石材
石材城
施工
石材双译
砂岩
干挂
石材与环保
芝麻黑
紫砂岩
随州石材
大理石装饰
意大利灰
雅士白
贵州木纹
法国木纹
石灰石
异形石材
按行业找资讯
石材装饰
2352881956
0595-86811139
网站客服
法定工作日
8:30-17:30
139石材网
微信扫描关注
xiaoqman
微信加好友
用户反馈
返回顶部