大理石因其美丽的色彩、特有的光泽、无一重复的美丽花纹,以及物理化学性能稳定易打理等优点,自古以来就被广泛用于装饰装修之中。伴随着中国经济实力水平的稳健提升,大众对工作和居住环境的要求也越来越高,大理石的使用范围已经从原来的豪华的公共建筑物,进入到普通人家的住宅。
然而装饰装修及石材加工市场龙蛇混杂,在石材选料、加工、安装的任何一个环节出现问题都将严重影响最终的感观效果。
为此,本文以雪花白大理石为例,介绍大理石在选料、加工、安装、修补结晶、成品保护等各个环节需要注意的事项,希望能给大家一些启示和帮助。

雪花白原产于意大利中北部的卡拉拉矿区,全世界也只有这里开采出来的大理石可以叫做雪花白,因产量和产地的限制。
雪花白大理石底色洁白细腻、质感纯净给空间带来一种空灵洁净的气息,让进入其中的人感觉清新、自然。
雪花白的纹理颜色大多呈黑色或灰色,也有少部分黑中带绿或呈黄褐色,纹理纵贯大理石板面,且呈不规则分布。雪花白大理石质地较软,在纹理处容易出现断裂的现象。
雪花白因产量和产地的限制价格较高,是大理石中的高端品种,一般使用在大堂,宴会厅等重要场所。


一、雪花白大理石原料的分类以及比选
雪花白石材因其品质的不同,其最终成型的装饰效果差异非常之大,价格也从几百到几千不等。因此,了解雪花白的分级方式对于买到货真价实的材料,保证工程的质量至关重要。
总体来说雪花白的价格主要以下因素决定:
1、底色越白的价格约高;(雪花白的首要定价因素)
2、纹理主次越分明、细纹越少、主纹越均匀的价格越高;
3、无黄斑、灰斑的价格较高;裂纹越少越不明显的价格越高;
4、板面无阴阳色的价格较高。
图片
国内石材行业对于雪花白的叫法五花八门,材料采购人员万不可单凭一个名称作为订货或确定价格的依据。一定要带着设计师选定的石材样板,亲自到矿山或石材市场对荒料和大板进行比对,多走多看才能明白其中的奥秘。
通常雪花白在石材市场上按照其品质的高低有以下几种名称:
1、对于底色偏灰,纹路细密的石材一般称作细花白或卡拉拉拉白(详见附图)。此种石材价格较低,使用也较为广泛;


2、对于底色偏灰黑,纹路多且呈网状分别的一般称作中花白(详见附图)。此种石材价格也较低;


3、对于底色白、纹路清晰的一般称作雪花白。其中纹路主次分明、细纹较少、主纹明显且宽度均匀的一般称作特级雪花白(详见附图),在一般工程项目中鲜有大面积使用,一般都只在大堂、宴会厅等重要空间用做局部点睛之笔。


普通雪花白


特级雪花白
4、对于底色白中微微泛黄(俗称奶白色),纹理颜色较浅且通常带一点黄色或绿色的雪花白,一般称作鱼肚白或者卡拉卡塔白(详见附图)。此种石材也同特级雪花白一样属于雪花白中的上等品种,价格较高;


正因雪花白石材的品质差异巨大,价格参差不齐。施工企业在采购此种石材的时候一定要在签订合同之前对加工厂的信誉以及加工能力有深入的考察,并在合同文件中对材料的品质有明确的要求。
加工过程中尽可能安排专人到工厂挑选大板并对加工过程进行监造,对于不合格的产品,坚决不予收货,以确保工程质量。
二、雪花白大理石的加工

雪花白荒料从矿山运到工厂之后,需要经过:
荒料筛选→拉锯加工大板→补胶打磨背网→大板筛选→针对纹理效果的电脑排版→红外线桥切机加工规格板→现场排版确认→磨边抛光→六面防护→编号包装等等
一系列工厂化加工之后,才能运到工地进行安装。在此过程中需要注意以下几点:


(1)荒料及大板筛选雪花白因其底色深浅不一、纹理变化多样风格各异,因此需要在荒料开大板前先挑选到足够的底色和纹理风格都接近的荒料(若用量较大可以分区域进行挑选)。
因为若是加工到最后才发现同一风格或底色的荒料不够,就需要花费大量的时间和人力物力去市场上寻找合适的荒料,而且还很可能因为采购量少而被迫高价采购。
为此,要将同一空间的雪花白用量全部计算出来,并制作好尺寸排版图。然后将拟用于该区域的荒料用航吊吊到一起,并进行尺寸测量,确保所选择的荒料足够该空间使用。
这里需要注意的是:不能单从面积上去衡量荒料是否够用,必须核对排版图中的板块尺寸,从而精确计算出石材出材率,这样才能万无一失。在确保荒料够用之后,对拟用荒料用喷水法进行的底色和纹理风格的比对,若存在偏差必须予以更换,以确保最终的装饰效果。
石材由荒料到大板的过程类似于赌玉,表面上看着底色纹理都很好的荒料,开出来的大板可能中间部分会存在裂纹、色斑等现象。
因此,除了在挑选荒料的时候安排有经验的人员外,还需要对开出来的大板进行二次挑选,对存在瑕疵的大板,或不予使用,或切除带瑕疵的部位后再进行使用。
(2)纹理效果预排版雪花白因其纹理变化多样,通常设计师只会要求风格基本统一、无色差、无裂纹即可,不会要求对纹对线(详见附图)。

墙面

地面雪花白
雪花白不对纹路案例
但如果设计师有特殊要求,那么就需要对雪花白进行纹理效果的预排版。先将拟使用在该部位的大板进行编号,按编号顺序拍成照片,并且测量好每块大板的规格尺寸。
然后将大板照片按排版图尺寸分割成规格板块大小,再用图形软件进行纹路排版(详见附图)。加工的顺序,以及每个块大板切割的位置必须严格按照排版图进行,严禁为了省料随意改动。


雪花白对纹路排版案例图
注:图案中的色差是因为拍照时的光线原因产生,大板的底色在排版前已经进行过对比,必须在底色无差异的情况下才能进行排版。
为了达到对纹拼图的效果,通过的纹理图形预排版保证了雪花白石材的最终的装饰效果满足设计师要求,但与此同时也真加了石材加工和现场安装的难度,大大降低了石材的出材率,提高了工程造价。
因此,在使用雪花白这种石材的时候,是否选择对纹处理,需要业主及设计师根据项目情况酌情考虑。

(3)规格板排版及确认在规格板加工出来之后,为确保石材的品质满足设计师要求,需要在工厂中找一特定位置将加工出来的规格板按照设计好的排版图进行摆放,并在高处设置一观察平台,邀请业主、设计、监理等人员现场对排版进行确认。

加工现场雪花白规格板排版效果图
(4)雪花白加工过程中的其他注意事项
在石材加工的各个环节都会用到水,一般石材生产商而为了节约成本、同时满足环境保护法规的相关要求都会使用经过沉淀的循环水。
石材加工中各个环节使用到的石材化学制剂都会流入循环水中(如石材染色剂、石材抛光蜡等等)。
这些化学制剂对于常规的黑色石材或米黄石材不会有明显的影响。但对于雪花白这种通体雪白且质地较软的石灰质石材,则极有可能造成不可逆的严重污染。因此,在加工雪花白的过程中所用到的水必须是自来水。
雪花白石材通体雪白,其中含有无数细小的晶体颗粒,表面光泽度极高。一旦出现断裂,在施工现场无论如何修补都会看出断裂的痕迹,而且若现场安装采用湿贴工艺进行施工,则雪花白极易在断裂处出现返碱现象。
因此,雪花白从荒料切割成大板之后就需要立即进行修补打磨以及背网等工作,以减少雪花白在加工及安装过程中出现断裂的几率。
雪花白质地较软,在安装后出现污染的概率较大,因此,雪花白出厂前必须做好六面防护。
三、雪花白安装工艺及其质量控制要点

通常墙面石材安装工艺一般分为干挂、点挂、胶粘、湿贴等。相比较而言,雪花白干挂工艺优点明显:
1、其有效的避免了传统湿贴工艺中雪花白大理石出现的返碱、污染等现象,有利于保证最终的装饰效果;
2、很好地解决了湿贴工艺中雪花白大理石经常出现的板材空鼓、开裂、脱落等现象,提高了建筑物的安全性和耐久性;
3、基本避免了石材因外界温度高低产生热胀冷缩而导致的脱落伤人事故;减轻了建筑自重,增加了石材的抗震性;因施工工序较少,节省了安装时间加快工程、进展;
4、安装可调节性大,更利于工人操作,使得墙面平整度、垂直度更有保障;没有用到水泥、河沙等比较“脏”的材料,有利于保证施工现场干净整洁。因此,干挂工艺非常适合在高大空间及大面积的墙面石材施工使用。

但干挂工艺也有其固有的缺点:
1、因其钢架需要一定空间,因此会占用较多的建筑面积;
2、因其石材版面与墙体之间存在较大空隙,因此不利于室内防水,同时也为蟑螂、老鼠等提供了庇护所。

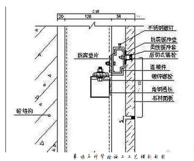
干挂工艺中按照挂件的种类又分为背栓干挂法和T型不锈钢挂件干挂法:
背栓干挂法是指在石材背面开一个大小合适的背栓孔,将背栓放入孔中拧紧锚固,再用特制的铝合金干挂件连接到钢骨架上面的安装工艺(详见附图)。
此种工艺安装牢固,抗震性能好,施工过程对石材无任何污染,但要求石材质地密实且厚度在30mm 之上,且挂件造价较高。因此,该工艺通常同于幕墙石材施工。

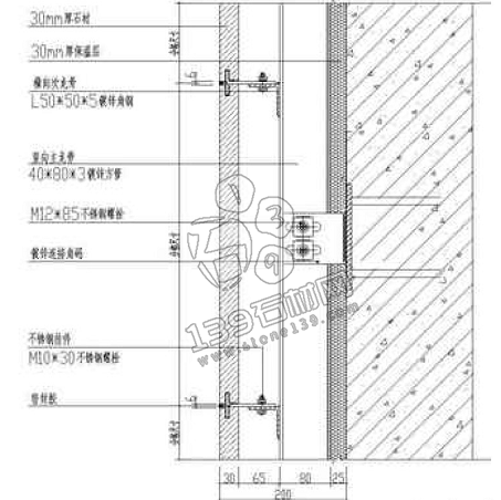
“T”型挂件干挂工艺是指将“T”型挂件用螺栓连接到基层钢架上,然后将石材的上下边缘正对挂件的中间位置切开一道槽,最后用干挂胶将挂件与石材的开槽处连接在一起(详见附图)。
在室内装饰工程中,绝大多数的干挂石材还是采用的“T”型挂件干挂工艺。

采用该工艺时,首先要注意的是石材干挂胶的选择,市面上常见的石材胶有云石胶和AB胶, 云石胶具有硬度高、固化速度快等优点,但其粘接强度以及耐久性也远远弱于AB胶,而且耐候性差。
因此,常常用于石材修补及临时固定。AB胶硬化较慢一般初凝需要2个小时,完全固化需要2天左右,但其粘接强度高、耐久性好、抗震性好,因此被用于石材的永久性固定。
该工艺因需要在石材板块正中开槽,一般大面积施工时要求板块厚度达到25mm以上,深交所雪花白在招标时要求厚度仅为20mm,为此我司在石材板块安装前,需要先用粘背条的方式将石材板块切槽处加厚至35mm。
雪花白大理石除了地面、厨房等基本采用的是胶泥湿贴的工艺做法,其他部位大多数采取的是T型挂件干挂的施工工艺,施工过程中除了前面提到的质量控制点外,还需要注意以下事项:


(1)对于黑色或米黄色系列的石材来说,因AB胶对其污染性较小,一般采用T型挂件干挂时,无需在开槽处重新涂刷石材防护剂。
但对于雪花白这一类的石材,在T型挂件的开槽位置必须重新涂刷防护剂,否则极易造成石材发黄变色。
(2)相对于普通石材,雪花白石材纹理变化极大,现场安装时必须严格按照工厂的排版进行安装,切不可随意调整板块安装的位置,否则将无法达到设计认可的效果。
(3)因雪花白石材的质地较软,在消防栓暗门、管道井暗门等经常开启,且有人员活动的位置,必须进行加厚处理,否则石材极易出现折断的现象。
(4)雪花白石材因其质地软,易污染的特性,施工完成之后的成品保护工作显得尤其重要。对于所有的阳角部位,用9mm厚夹板钉成护角进行保护。
对于大面积的石材板面用珍珠棉加5mm厚夹板进行保护。对于石材暗门等位置,应考虑在工程交付前最后时刻再进行安装,安装完成后贴上封条,确保门扇不被随意开启。

总结:随着石材在室内装饰的使用越来越普及,更多的石材品种将被人们开发利用,如何采购到货真价实的材料,如何更好的展现出石材的天然品质,是大家值得深入研究的课题。相信在大家的共同努力下,石材饰面的工程质量会有更加长足的进步。
客服热线:











